0

Můj katalog

Tyto nemovitosti jste si vybral/a do svého katalogu. Budete-li mít zájem, můžete jednotlivé položky řadit dle potřeby, odebrat z katalogu nebo naopak přidat z dříve prohlížených položek. Stažení katalogu dokončíte stisknutím tlačítka „stáhnout můj katalog“.

Vybrané nemovitosti

bytová jednotka projekt plocha karta nemovitosti transakce odebrat z katalogu

stáhnout katalog | stáhnout katalog / ceník

Byt C1.1

1.NP

dispozice plocha B/L/T transakce cena celkem do katalogu
2+kk
61.8 m2
T
prodej
zobrazit cenu
poptat nemovitost
kk - kuchyňský kout | B - balkón | L - lodžie | T - terasa
 
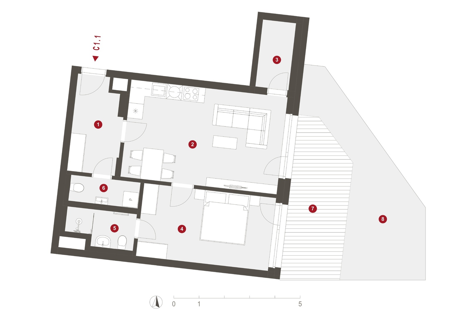
PLOCHA JEDNOTKY 61.8 m2
01 vstupní hala 7.2 m2
02 obývací pokoj + kk 24.1 m2
03 komora 3.5 m2
04 ložnice 15.3 m2
05 koupelna s wc 4.2 m2
06 wc 3.3 m2
příčky, sloupy a šachty 4.2 m2
CELKOVÁ PLOCHA 97.2 m2
01 sklep 3.7 m2
07 terasa 13.3 m2
08 terasa se zelení 18.4 m2
sklep SK01.01
Garážové stání G01.126
cena garážového stání* zobrazit cenu
*Cena jednotky nezahrnuje garážové stání.
plánek podlaží
Byt C1.1
1. podzemní podlaží
1. podzemní podlaží

Standardy

Standardy bytové jednotky

Domluvit si schůzku či prohlídku

Potřebujete více informací o nemovitosti nebo si chcete sjednat prohlídku? Vyplňte formulář a my se vám obratem ozveme.

Vaše osobní údaje budou zpracovány podle Podmínek zpracování osobních údajů.


Generování PDF