0

Můj katalog

Tyto nemovitosti jste si vybral/a do svého katalogu. Budete-li mít zájem, můžete jednotlivé položky řadit dle potřeby, odebrat z katalogu nebo naopak přidat z dříve prohlížených položek. Stažení katalogu dokončíte stisknutím tlačítka „stáhnout můj katalog“.

Vybrané nemovitosti

bytová jednotka projekt plocha karta nemovitosti transakce odebrat z katalogu

stáhnout katalog | stáhnout katalog / ceník

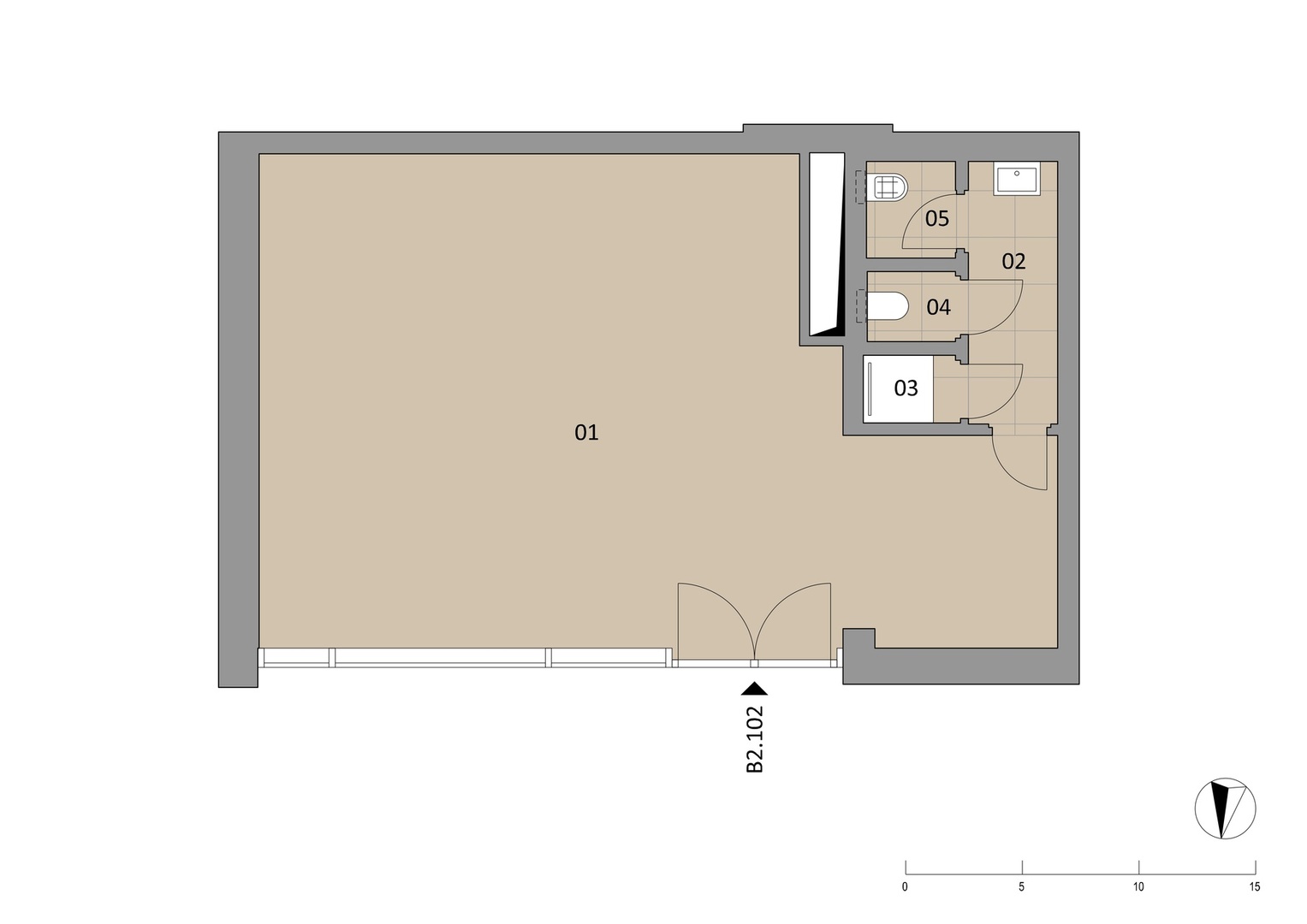
Komerční prostory B2.102

2.NP

dispozice plocha B/L/T transakce cena celkem do katalogu
nebytový prostor
65.3 m2
prodej
6 000 000 CZK
poptat nemovitost
kk - kuchyňský kout | B - balkón | L - lodžie | T - terasa
 
PLOCHA JEDNOTKY 65.3 m2
01 prodejna 53.7 m2
02 předsíň WC 4.1 m2
03 sprcha 1.2 m2
04 WC 1.2 m2
05 úklidová komora 1.4 m2
příčky, sloupy a šachty 3.7 m2
CELKOVÁ PLOCHA 69.2 m2
00 sklep 3.9 m2
sklep SK02.27
parkovací stání  G.02.25
parkovací stání  G.02.26
cena parkovacího stání* 590 000 CZK
* Cena jednotky nezahrnuje parkovací stání.
plánek podlaží
Komerční prostory B2.102

Standardy

Standardy bytové jednotky

Domluvit si schůzku či prohlídku

Potřebujete více informací o nemovitosti nebo si chcete sjednat prohlídku? Vyplňte formulář a my se vám obratem ozveme.

Vaše osobní údaje budou zpracovány podle Podmínek zpracování osobních údajů.


Generování PDF