0

My catalog

You have selected these properties for you catalogue. If interested, you can sort individual items as needed, take them out of the catalogue or add items viewed earlier. Complete downloading of the catalogue by clicking the button "Download my catalogue“.

Selected properties

flat residence area Card of properties transaction remove from the catalog

download catalog | Download catalogue / price list

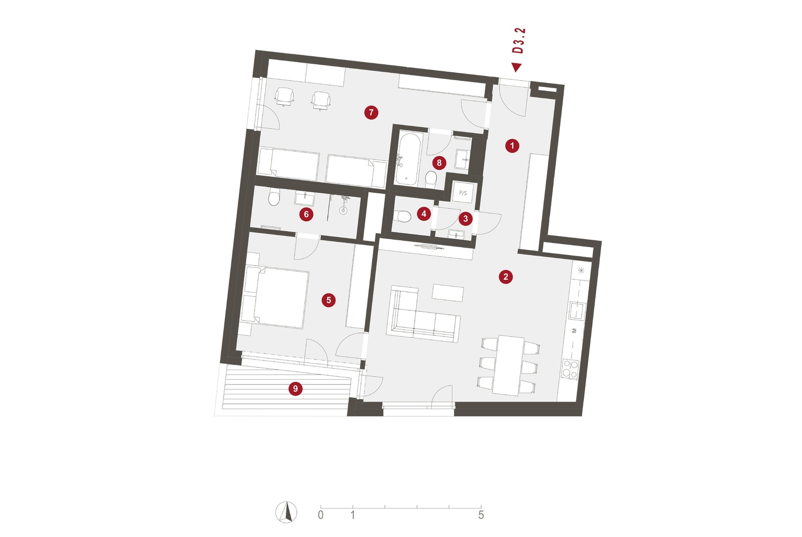
Byt D3.2

3.NP

disposition area B/L/T transaction final price add to the catalogue
3 bedrooms + kitchen corner
95 m2
B
sale
15 890 000 CZK
kk - Kitchen corner | B - balcony | L - lodge | T - terrace
 
Unit area 95 m2
01 Entrance hall (foyer) 9.9 m2
02 Living room + KK 31.7 m2
03 Hall WC 1.8 m2
04 WC 1.6 m2
05 Bedroom 14.6 m2
06 Bathroom with WC 4.4 m2
07 Bedroom 19.3 m2
08 Bathroom with WC 3.7 m2
Partitions, pillars and shafts 8 m2
total area 103.9 m2
01 Basement (cellar) 4.3 m2
09 balcony 4.6 m2
Garage parking G01.27
Basement (cellar) SK01.44
cena garážového stání* 600 000 CZK
*Cena jednotky nezahrnuje garážové stání.
floor plan
Byt D3.2

was there nothing you liked in our range?

Our company City Home offers affordable housing units, commercial premises or also warehouses and offices in the center of Prague and its immediate surroundings.

Generate PDF