0

My catalog

You have selected these properties for you catalogue. If interested, you can sort individual items as needed, take them out of the catalogue or add items viewed earlier. Complete downloading of the catalogue by clicking the button "Download my catalogue“.

Selected properties

flat residence area Card of properties transaction remove from the catalog

download catalog | Download catalogue / price list

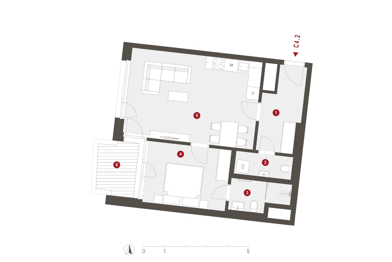
Byt C4.2

4.NP

disposition area B/L/T transaction final price add to the catalogue
2 bedrooms + kitchen corner
57 m2
B
sale
display the price
kk - Kitchen corner | B - balcony | L - lodge | T - terrace
 
Unit area 57 m2
01 Entrance hall (foyer) 7.1 m2
02 WC 3.2 m2
03 Bathroom with WC 4.1 m2
04 Bedroom 11.7 m2
05 Living room + KK 26.2 m2
Partitions, pillars and shafts 4.7 m2
total area 66 m2
01 Basement (cellar) 4.4 m2
06 balcony 4.6 m2
Garage parking G01.10
Basement (cellar) SK01.08
cena garážového stání* display the price
*Cena jednotky nezahrnuje garážové stání.
floor plan
Byt C4.2

was there nothing you liked in our range?

Our company City Home offers affordable housing units, commercial premises or also warehouses and offices in the center of Prague and its immediate surroundings.

Generate PDF